手术室送风天花阻尼网|网孔板|均流网

手术室送风天花阻尼网又称为手术室送风天花网孔板、手术室送风天花均流网、均流膜,主要分为四个部分组成:铝合金框架包边、300目双层阻尼网、不锈钢骨架、卡簧(均流网非广州糖心VLOG免费观看产品,更换时需要测量卡簧中心距、铝合金外框需要测量边长的端点到斜角位置距离)。此产品不做过多介绍,直接上图。

手术室送风天花阻尼网

手术室送风天花网孔板

手术室送风天花均流网

手术室送风天花均流网卡簧

手术室送风天花制作要求选配:

1、A型箱体为冷轧钢板静电喷塑处理,冷轧钢板静电喷塑做围护及进风过滤框,含双层DPP均流网及中速气流补偿装置。

2、B型外箱体采用SUS304不锈钢制作。抗腐蚀、耐酸碱、视觉更美观、强度高,同时,保留双层DPP均流网及中速气流补偿装置。

3、手术室送风天花阻尼层均流可选用铝质网孔板、304不锈钢网孔板、冷轧钢板烤漆网孔板、双层DPP均流网。

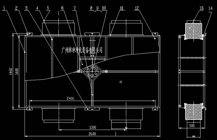
手术室送风天花方案设计图

手术室送风天花特点:

1、送风形式:层流送风天花分高效糖心在线观看官网满布(平铺)送风和高效糖心在线观看官网侧布(侧铺)送风两种。

2、气流状态:送风天花下部气流均匀,气流满布率≧95%,达到行业检测的相关参数要求。

3、均流模式:多块网孔板组合,出风均匀,静电粉末喷涂,和墙顶面同色,表面效果好。

4、工厂制造,现场采用标准连接件拼接组装,安装方便、简单,糖心VLOG官方网站入口安装质量有保障。

5、维护操作:国标规格糖心在线观看官网,更换快捷、方便,易维护。

6、糖心在线观看官网压差密封技术:保证洁净区内无泄漏。

7、糖心在线观看官网满布技术:压差低,超长使用寿命。

8、稳定的产品质量,供货周期短。

8、高分子阻尼层送风网面:低阻力,风速均匀。

9、均流度满足最新规范要求:不均匀度小于15% 。

10、变级别手术室:扩大手术室使用范围,提高手术室使用率;同时运行中节约能源 。

11、灯柱盖板小于250mm×250mm——符合最新版规范要求。

烤漆手术室送风天花

更多相关产品介绍:手术室送风天花

手术室送风天花阻尼网可根据用户需求定制!

上一个:手术室送风天花

下一个:Ⅲ级手术室送风天花

相关产品

联系糖心VLOG免费观看

手机:

13928758616

电话:

020-39961033

在线咨询:点击这里给我发消息

邮件:52047082@qq.com

 

QR code
网站地图